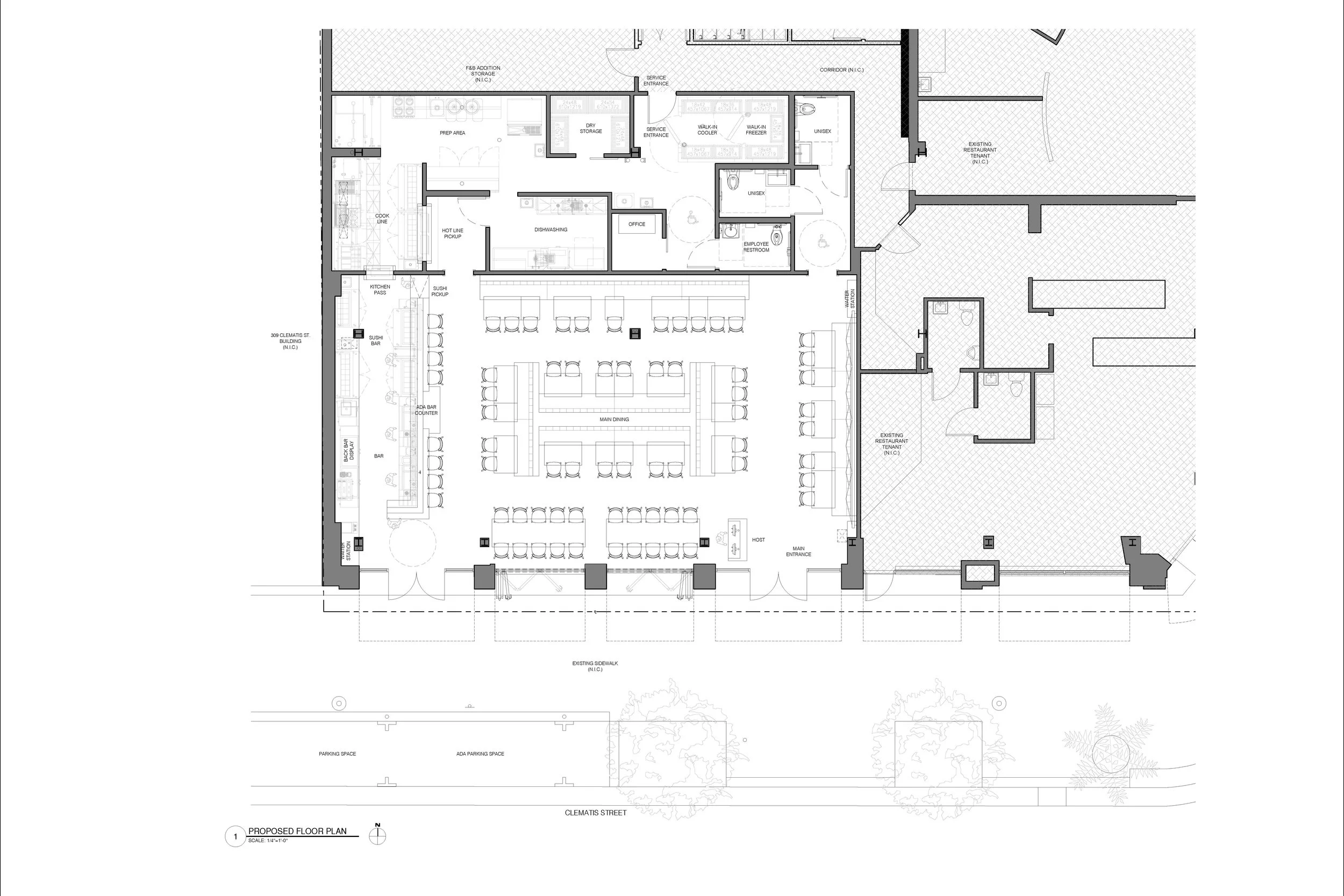
Pubbelly Sushi West Palm Beach
Location: West Palm Beach, Florida
Scope: Architecture, Interior Design
Area: 3,878 S.F.
Year: 2024
Location: West Palm Beach, Florida
Scope: Architecture, Interior Design
Area: 3,878 S.F.
Year: 2024